浅谈喷射器
喷射器又名射流真空泵、射流真空喷射器、喷射泵、水喷射器、真空喷射器。它是利用流体来传递能量和质量的真空获得装置,采用有一定压力的水流通过对称均布成一定侧斜度的喷咀喷出,聚合在一个焦点上。由于喷射水流速特别高,将压力能转变为速度能,使吸气区压力降低产生真空。数条高速水流将被抽吸的气体攫走,经过文氏管收缩段与喉径充分混合压缩,进行分子扩散能量交换,速度均衡。在经扩张段速度降低压力增高,大于大气压力从出口喷入蓄水罐(池)中,不凝性气体析出。水经离心泵循环使用,完成吸气工艺,这样一种装置叫做喷射器。
一、喷射器的原理: 在这种装置里,不同压力的两股流体相互混合,并发生能量交换,以形成一股居中压力的混合流体。混合流体分为气(蒸汽)相,液相,或者是气体(蒸汽)、液体和固体的混合物。进入装置以前,压力较高的那种介质叫做工作介质。工作介质流叫做工作流体。工作流体以很高的速度从喷嘴出来,进入喷射器的接受室,并把在喷射器前的压力较低的介质带走。被带走的流体叫做引射流体。通常在喷射器里,最初是发生工作流体的势能或热能转变为动能。工作流体的动能,一部分传给引射流体。在沿喷射器流动的过程中,混合流体的速度渐渐均衡,于是混合流体的动能相反地转变为势能或热能。工作介质流体和引射介质流体进到混合室中,进行速度的均衡,通常还伴随压力的升高。流体从混合室出来进入扩散器,压力将继续升高。在扩散器出口处,混合流体的压力高于进入接受室时引射流体的压力。提高引射流体的压力而不直接消耗机械能,这是喷射器最主要的最根本的性能。由于具有这种性质,在很多技术部门中,采用喷射器比采用机械的增压设备(压缩机、泵、鼓风机和引风机等),使有可能得到更为简单更为可靠的技术解决办法。除了本身结构特别简单以外,喷射器与各种设备连接的系统也很简单,制造也不复杂,在工程上得以广泛的应用。其中在动力工程技术领域中,主要用于发电广,废气馀热供暖装置,制冷,输送固体散粒状物体等。
二、用途:
主要应用于各行业真空吸气工艺:如物料吸收输送、冷凝、蒸馏蒸 发、浓缩、脱色除味、供氧除氧、干燥结晶过滤、化学吸收、尾(废)气体中和、真空抽水、真空造型等工艺。广泛应用于轻工、化工、化学、制药、真空冶炼、制糖、制盐、味精、化纤、造纸、食品、塑料橡胶、陶瓷、大中型医院及厂矿企业的真空站、真空制砖、建筑基坑降水、排水、石油、环保等行业。
我单位使用喷射器的地方有两处,一处为汽机抽真空用途;一处为化学再生用途。
汽机使用的喷射器为水力喷射器,也叫射水抽气器。


一、 原理
水力射喷器是一种具有抽真空、冷凝、排水等三种有效能的机械装置。它是利用一定压力的水流通对称均布成一定倾斜度的喷咀喷出,聚合在一个焦点上。由于喷射水流速度很高,于是周围形成负压使器室内产生真空,另外由于二次蒸汽与喷射水流直接接触,进行热交换,绝大部分的蒸汽冷凝成水,少量未被冷凝的蒸汽与不凝结的气体亦由于与高速喷射的水流互相摩擦,混合与挤压,通过扩压管被排除,使器室内形成更高的真空。
二、用途
水力喷射器应用极为广泛,主要用于真空与蒸发系统,进行真空抽水、真空蒸发、真空过滤、真空结晶、干燥、脱臭等工艺,是制糖、制药、化工、食品、制盐、味精、牛奶、发酵以及一些轻工、国防部门广泛需求的设备。但现在生产水力喷射器的制造厂较小,品种亦不齐全,为此,经过2013到2015年来不断改进设计,采用多喷阻与汽环(导向盘)等结构,以及用多级泵进水,低位安装,只需安装高度4.5米,完善与提高了其工作性能,具有一定的先进性,是真空冷凝设备的一种革新,深受各地用户单位的欢迎。
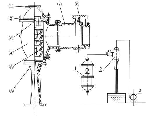
三、水力喷射器的结构

左图:1、器盖 2、喷咀座板 3、喷咀 4、器体
5、导向盖盘 6、扩散管 7、止逆阀阀体 8、阀板
右图:1、真空蒸发锅 2、水力喷射器 3、水泵
水力喷射器由器体、器盖、喷咀、喷咀座板、导向盘、扩压管及单向阀等部件组成,喷咀采用多喷咀的结构形式,以便得到较大的水蒸气接触面积,有利于热交换的进行,获得较好的真空效果。喷咀座板加工精密,精度较高,以便喷射水流偏斜,降低抽射效能。整个装置结构紧凑精密,强度亦较高,用于真空蒸发系统中,由于能把冷凝器的冷凝作用与真空泵的抽气作用合并在一个设备中同时完成,大大地简化了工艺流程,比之原来用真空泵与旧式冷凝器的装置,可以节省去真空泵、冷凝器、分水器等设备。
四、水力喷射器的优点
(1)水力喷射器体积小、重量轻、结构紧凑。而效能又比较高,耗电量低于真空泵系统,投资省。
(2)水力喷射器操作简单维修方便,不用专职人员管理,由于无机械传动部分,所以噪声低,不需消耗润滑油。
(3)水力喷射器可以室外底位安装,占地面积少,可以节省厂房建筑面积与安装费用。
化学使用的喷射器是酸碱喷射器。建厂使用的型号为WGP-2518。后改为WGP-1009和WFR-65型号。
一、用途
WGP系列喷射器是锅炉水处理系统中用于输送和稀释再生药液的设备。当阴、阳离子交换器制水阶段结束后,交换器内离子交换树脂已处于失效状态,必须对离子交换树脂进行再生,从而恢复离子交换树脂的交换性能,通常用低浓度的酸、碱溶液来再生阴、阳离子交换树脂。

在目前,配制和输送再生溶液大都仍使用WGP型酸碱喷射器。它具有结构紧凑,操作简便,运行安全可靠,价格合理等优点。喷射器是化学水处理系统中的典型设备。
二、原理
当高压原水通过管道阀门进入喷射器的渐缩段,将静压头转换成动能,在喷嘴处成为高速射流,使混合室形成微真空状态,将高浓度的再生药液吸入混合室,并使再生药液的压力和速度发生变化;在混合段内,水和药液得到充分地混合,然后注经扩散段,使再生液减低流速,静压头升高,再通过出口管道及阀门将稀再生液送到交换器本体中。酸碱喷射器一般用于化学水处理系统设备中,配置和输送再生溶液都要用到酸碱喷射器。

三、主要技术规范
酸碱喷射器 | WFR-65 | WFR-65 | 进水压力 | ≥0.35MPa | ≥0.35MPa | 出水压力 | ≥0.15MPa | ≥0.15MPa | 进口温度 | 20-30℃ | 20-30℃ | 出口流量 | 15-24t/h | 15-24t/h | 人口药液浓度 | HCL30% | NaOH30% | 出口药液浓度 | 2-53% | 1-3% | 材质 | 钢衬塑 | 钢衬塑 |
四、我单位酸碱喷射器使用进化过程:
2003年我单位建厂使用的第一代酸碱喷射器是FEP材质,外型如图。

它是一种纤维增强复合材料,是由纤维材料与基体材料按一定的比例混合后形成的新型材料。由于所使用的树脂品种不同,因此有聚酯玻璃钢、环氧玻璃钢、酚醛玻璃钢之称。质轻而硬,不导电,机械强度高,回收利用少,耐腐蚀。缺点是时间久了,容易裂缝,老化,吼管处在外力的作用下易断裂。
2008年化水酸碱喷射器开始损坏,从那时开始使用第二代酸碱喷射器,材质为ABS,外型如图。

ABS是由丙烯腈,丁二烯和苯乙烯组成的三元共聚物,英文名为acrylonitrile–butadiene–styrene copolymer ,简称ABS 。它是五大合成树脂之一,其抗冲击性、耐热性、耐低温性、耐化学药品性及电气性能优良,还具有易加工、制品尺寸稳定、表面光泽性好等特点,容易涂装、着色,还可以进行表面喷镀金属、电镀、焊接、热压和粘接等二次加工,广泛应用于机械、汽车、电子电器、仪器仪表、纺织和建筑等工业领域,是一种用途极广的热塑性工程塑料。其在使用过程中效果一直很好。解决了第一代酸碱喷射器材料老化的问题,通过结构上的变化解决了吼管易断问题。但是在连接管道牵引里的作用下,连接法兰为丝牙方式连接,容易脱落,造成漏水,再生效果不好,且丝牙被拉平后无法维修。
2015年为解决第二代酸碱喷射器的缺点,化水开始使用第三代酸碱喷射器-钢管衬塑喷射器。如图。

其壳体采用无缝钢管,内衬PO(聚烯烃)、PP(聚丙烯)、PE(聚乙烯)等材料。采用热滚塑工艺,一次成型,防腐性能强,不结垢,耐高温,可耐酸、碱、盐等腐蚀性介质的腐蚀,耐负压、抗老化,不易断裂等优点。它解决了第一代酸碱喷射器老化易裂的缺点,解决了第二代酸碱喷射器牙口连接不牢固的缺点,是目前理想的酸碱喷射器。
五、使用和注意事项
(1)使用开启连接喷射器前后管道上的阀门,使高压原水进入喷射器,开启药液进口阀门,并调节其流量,就能使喷射器出口溶液浓度达到所需的浓度。
(2)安装后必须进行水压实验,保证安装质量。水压实验为高压原水的工作压力,且不大于0.588MPa.
(3)喷射器在使用时不需要特别的维护,但应当避免日光直接长期照射、雨淋和锐物撞击和损伤。
(4)外部连接管道内径均不小于喷射器相应连接管道的公称直径。(建湖公司 孙云)
浅谈衬胶隔膜阀
衬胶隔膜阀是一种特殊形式的截断阀,出现于20世纪20年代。它的启闭件是一块用软质材料制成的隔膜,把阀体内腔与阀盖内腔及驱动部件隔开,故称隔膜阀。其最突出特点是隔膜把下部阀体内腔与上部阀盖内腔隔开,使位于隔膜上方的阀杆、阀瓣等零件不受介质腐蚀,省去了填料密封结构,且不会产生介质外漏。电厂中多用于化学水处理。
一、特点
最, 突出特点是隔膜把下部阀体内腔与上部阀盖内腔隔开,使位于隔膜上方的阀杆、阀瓣等零件不受介质腐蚀,省去了填料密封结构,且不会产生介质外漏。

衬胶隔膜阀 外型
1、采用橡胶或塑料等软质密封制作的隔膜,密封性较好。由于隔膜为易损件,应视介质特性而定期更换。
2、受隔膜材料限制,隔膜阀适用于低压和温度相对不高的场合。
3、隔膜阀按结构形式可分为:屋式、直流式、截止式、直通式、闸板式和直角式六种;连接形式通常为法兰连接;按驱动方式可分为手动、电动和气动三种,其中气动驱动又分为常开式、常闭式和往复式三种。
4、一般不宜用于温度高于60度及输送有机溶剂和强氧化介质的管路中,也不宜在较高压力的管路中使用,隔膜阀是在1.3×10-5~2.5X106Pa的流体系统中用来开启或隔断气流的阀门。
二、主要性能
漏率:≤1.3×10-5Pa。L/S
材料:WCB、304、316L
工作介质:气,水,油
工作温度:氟橡胶-30℃~+150℃
G41J衬胶隔膜阀连接尺寸:

三、衬胶隔膜阀工作原理
气动衬胶隔膜阀:
以压缩空气为动力带动传动螺杆,使阀芯上下运动,同时拉动膜片上下运动使其关闭和打开。其特点为:结构紧凑、简单、体积小,外形美观;开关有导向,运动平稳;关闭力矩小,寿命长,≥30万次;膜片压紧可自动调整,受压均匀,密封可靠;膜片装入阀芯采用推入式,更换方便。
电动衬胶隔膜阀:
1、本阀由阀体、阀盖、阀杆、阀瓣、隔膜、其它驱动零件等组成。
2、阀门的启闭是由电动装置的连接轴驱动阀杆螺母,使阀杆作轴向运动时,带动阀瓣升降而达到的。
3、当电源发生故障而中断时,且阀门急需启闭的紧急状况下,首先应将“手—电动切换手柄”转换至刻有手动标记的位置上,然后可通过旋转手轮使闪门启闭。当顺时针方向旋转时,阀门即可关闭;反之则开启。
4、当需恢复电动操作时,必须将“切换手柄”转换至刻有电动标记的位置上,方可进行电动操作。
四、衬胶隔膜阀注意事项
1、阀门应存放在干燥通风的室内,严禁堆迭放置。
2、库存阀门的通路两端必须封口,以防异物进入内腔而损伤密封部件。且应避免与油类或其它易燃物品接触。
3、本阀的金属加工表面应清除污垢,并涂以防锈剂。
4、衬胶层或橡胶隔膜表面切勿涂刷油脂类物品,以免产生橡胶溶胀而影响阀门使用寿命。
5、在存放期间或停用期间,应逆时针旋转手轮,使阀门处于微启状态,避免使隔膜因长期受压而失去弹性。
6、运输过程中或安装时,吊索不得系结在手轮或阀杆上。并严禁与其它金属或硬质物撞击,以防损伤零件和衬层。字串6
7、安装前,应仔细核对管路的运行条件及介质是否与本阀规定的适用范围相符,避免选型不当而造成不必要的损失,乃致发生意外事故。
8、本阀除不宜应用于真空管路外,可在管路的任意位置安装作双向流动,但应确保操作和维修的方便。
9、安装时,应将阀体内腔清洗干净,避免污垢卡阻或损伤密封部件,并检查各部位连接螺栓是否均匀紧固。
10、运行中必须经常检查与介质接触的部件,并按实际使用情况,定期更换易损部件。
11、当需要换隔膜时,应注意切勿将隔膜拧得过紧或过松。
12、本阀如应用于间断性运行管路上,则在停止使用期间,应清洗与介质接触部位,以延长使用寿命。
13、在手动操作纵阀门时,不得借助于辅助杠杆使阀门启闭,以免扭矩过大而损伤驱动零件或密封部位。
14、经检修后的阀门,在应用前,需按有关测试规定进行密封性试验,合格后方能安装。并作好维修记不以备查考。
五、衬胶隔膜阀优点
1.衬胶隔膜阀与其它阀门的区别在於:采用无填料函的构造;橡胶隔膜可使流道内的腐蚀性介质与所有驱动部件处於完全隔离的状态,从而避免了通常阀门的“跑、冒、滴、漏”等弊端。
2.由于隔膜阀的流道平滑,流阻小,故而可获得较大的流量。
3.阀体内腔表面视复有厅供选择的多种橡胶。所以拥有优的耐腐蚀的特点。
4.密闭件为富有弹性的橡胶隔膜。所以还拥有较好的密闭性和关闭力。
5.衬胶隔膜阀是由阀体、阀盖、阀瓣、阀杆、隔膜和其它驱动零件等组成的一种阀体。
6可根据不同的视裹材质,适用於不同温度下的不同流体介质管路上,作为控制介质流动的启闭机构。(建湖公司 张建)
|